Lot 5 Garland Street

Single Family For Sale in Harbour Grace, Newfoundland & Labrador

$259,900
  • 2 Beds
  • 1 Baths
  • 816 Sq. Ft.
  • Built 2025
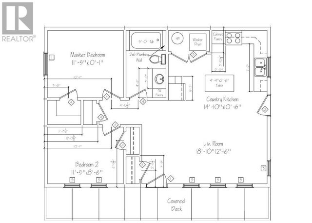
Welcome to Lot 5 Garland Street, Harbour Grace. This property is currently construction and should be completed by late 2025 or early 2026. The home features single level living with two bedrooms with ample closet space, three - piece bathroom and open concept living area complete with large living room, eat - in kitchen with appliances and laundry nook. The home with have electric baseboard heat, Atlantic New Home Warranty and quality finishes throughout. Hst is included in the purchase price with rebate to be assigned to vendor on closing. (id:4069)
Address
Lot 5 Garland Street
List Price
$259,900
Property Type
Single Family
Type of Dwelling
Single Family
Style of Home
Bungalow
Transaction Type
Sale
Area
Newfoundland & Labrador
Sub-Area
Harbour Grace
Bedrooms
2
Bathrooms
1
Floor Area
816 Sq. Ft.
Lot Size
50' x 100' approx Sq. Ft.
Year Built
2025
MLS® Number
1290894
Listing Brokerage
Royal LePage Atlantic Homestead
Postal Code
A0A2M0
Zoning
RES

Request More Info or a Showing

BRENT ROACH

Phone: 709.683.3071

Email Directly

140A Conception Bay Highway Bay Roberts NL A0A1G0