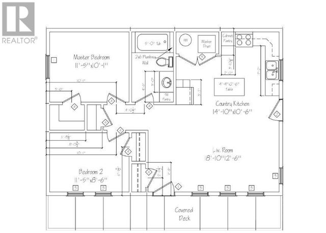
Welcome to Lot 7 Garland Street, Harbour Grace. This property is currently construction and should be completed by late 2025 or early 2026. The home features single level living with two bedrooms with ample closet space, three - piece bathroom and open concept living area complete with large living room, eat - in kitchen and laundry nook. The home with have electric baseboard heat, Atlantic New Home Warranty and quality finishes throughout. Hst is included in the purchase price with rebate to be assigned to vendor on closing. Home is on a developing street with other new, exisiting homes with more new homes on the way! (id:4069)
Address
20 Garland Street
List Price
$259,900
Property Type
Single Family
Type of Dwelling
Single Family
Style of Home
Bungalow
Transaction Type
Sale
Area
Newfoundland & Labrador
Sub-Area
Harbour Grace
Bedrooms
2
Bathrooms
1
Floor Area
816 Sq. Ft.
Lot Size
50' x 87' Approx Sq. Ft.
Year Built
2025
MLS® Number
1292360
Listing Brokerage
Royal LePage Atlantic Homestead
Postal Code
A0A2M0
Zoning
RES





